увеличенокопия.jpg)
увеличенокопия.jpg)
















Тёплый контур
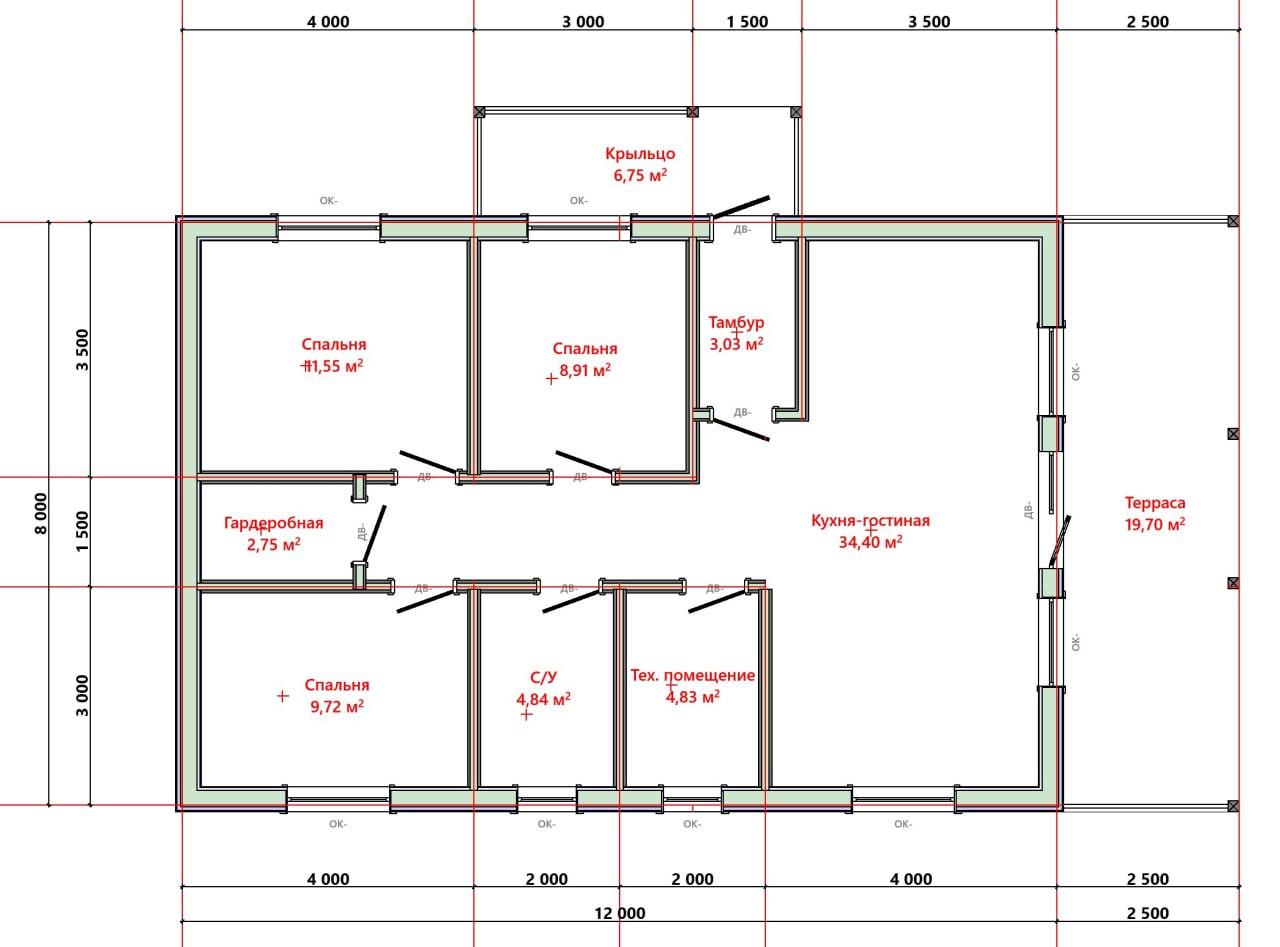
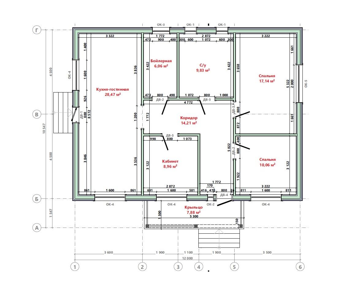
Одноэтажный дом площадью 107 кв.м. с 3 комнатами, большой кухней-гостиной, санузлом, гардеробной и котельной. Комплектация: Свайный фундамент Каркас из доски 50х150 + брусок 50х50 под перекрёстное утепление Утепление стен, цокольного и чердачного перекрытия 200 мм Наружняя отделка виниловым сайдингом Дёке Окна - двухкамерные стеклопакеты с профилем Veko Кровля из битумной черепицы Водосточная система Террасная доска из лиственницы
