увеличенокопия.jpg)
увеличенокопия.jpg)
















Под ключ
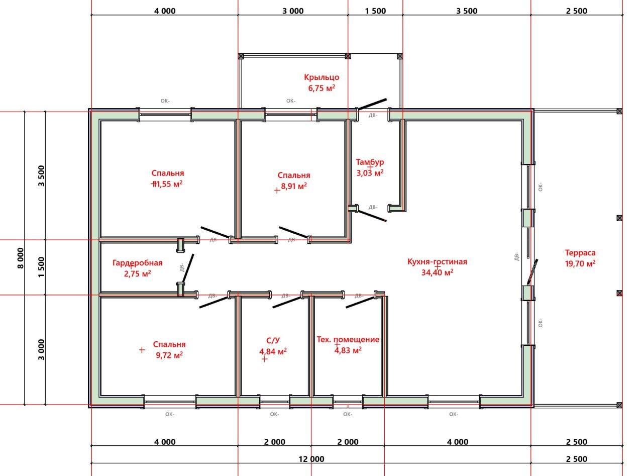
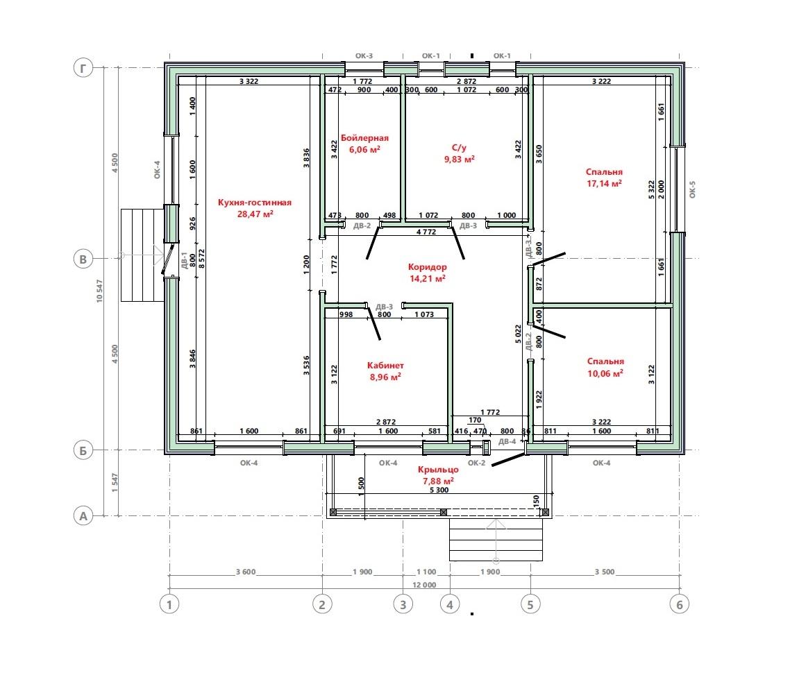
Одноэтажный дом площадью 107 кв.м. с 3 комнатами, большой кухней-гостиной, санузлом, гардеробной и котельной. Комплектация: Свайный фундамент Каркас из доски 50х150 + брусок 50х50 под перекрёстное утепление Утепление стен, цокольного и чердачного перекрытия 200 мм Наружняя отделка виниловым сайдингом Дёке Окна - двухкамерные стеклопакеты с профилем Veko Кровля из битумной черепицы Водосточная система Террасная доска из лиственницы Внутреняя отделка: Отделка стен гипсокартоном с покраской Подготовка черновых полов плитами ЦСП финишное покрытие Лаимнатом Инженерные системы: Монтаж электрики Монтаж отопления Монтаж водоснабжения Монтаж водоотведения
