









Каркас + Внешняя отделка
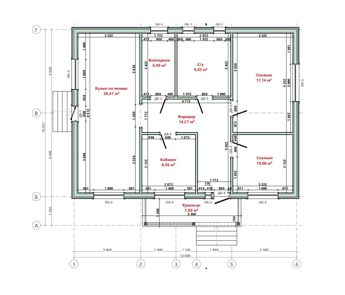
Одноэтажный дом площадью 102 кв.м. с 3 комнатами, большой кухней-гостиной, санузлом и котельной. Комплектация: Свайный фундамент Каркас из доски 50х150 + брусок 50х50 под перекрёстное утепление Утепление стен, цокольного и чердачного перекрытия 200 мм Наружняя отделка виниловым сайдингом Дёке Окна - двухкамерные стеклопакеты с профилем Veko Кровля из битумной черепицы Водосточная система Террасная доска из лиственницы
